5.导模与计算相关¶
大纲¶
一、特殊指定¶
1.1、与计算软件的统一¶
问:连梁、点铰这些特殊指定,在小迅或者计算软件中设置后,是否匹配过就能保持统一性❓
答:是的。小迅始终维护着小迅模型与计算模型的统一。
情形1:在小迅设置,自动生成的计算模型中必定存在这些信息。
情形2:在计算模型设置,当计算模型数据库匹配回小迅后,小迅模型会自动保存这些信息。
二、导模参数¶
2.1、刚性杆截面同共线梁¶
问:“刚性杆截面同共线梁”是什么意思❓
答:当刚性杆存在与之共线的梁构件时,在生成的计算模型中,刚性杆可转为梁构件。
刚性杆截面同共线梁的参数说明
2.2、忽略水平偏移¶
问:“忽略水平偏移”是什么意思❓
答:用户可设置构件在自动生成的计算模型中:是否忽略偏心值。
模型层级设置:导模总参界面。
构件层级设置:使用特殊指定功能。
模型层级设置:在导模界面设置是否“忽略水平偏移”。
构件层级设置:单独设置构件是否“忽略水平偏移”。
2.3、层间板的判定¶
问:导模总参数界面中"板:层间板的判定边总长比板周长阈值"的解释❓
答:当在板围蔽构件的网格中存在不同的标高时,软件会判断是否需要按层间板生成计算模型。
当“判定边总长与目标板周长的比值>用户设置值”时,将自动按层间板导入计算软件。
层间板判定边的示意图
定位为层间板后,将保证楼板标高的正确。
2.4、弹性板的判定¶
问:导模总参数界面中"板:楼板转弹性板的虚梁总长比板周长阈值"的解释❓
答:在挑板等建模场景中常通过虚梁围蔽生成板。为保证正确的传力路径,需将板定义为弹性板。
在板围蔽空间中,当“虚梁总长与目标板周长的比值>用户设置值时,自动将板定义为弹性板。
刚性板与弹性板示意图(1)
刚性板与弹性板示意图(2)
2.5、刚性杆的处理¶
问:导模总参数界面中"刚性杆截面同共线梁"的解释❓
答:选择"是",在生成计算模型时,刚性杆将会变为与之共线的梁,如下图所示。
导模总参数的界面
不同参数设置的示意图
三、导模操作¶
3.1、生成局部模型¶
问:如何导出局部模型进行计算❓
答:先创建一个专用的导模剖切框,再按视图导模。
- 第一步:定义一个用于导模的剖切框,视图类型选择:三维图。
定义一个专门用于导模的剖切框,需要计算的构件在剖切框内。
- 第二步:选择“按视图”导模。
按视图导模
3.2、隐藏不导出的构件¶
问:在创建导模专用的视图后,有些构件不想导出,怎么办❓
答:可直接使用“隐藏构件”功能,并选择“按视图”导出计算模型。
隐藏构件以达到不导出计算的效果。
📢特别说明:
请在导模专用的剖切框中使用该功能!
不要在楼层三维图中隐藏构件!不要在楼层三维图中隐藏构件!不要在楼层三维图中隐藏构件!
3.3、导出边界条件¶
问:如何导出小迅的边界条件到计算软件中❓
答:导出边界条件的前置条件是匹配计算模型的ID。
由于每次导出的计算模型ID会变化,所以重复操作以下三个步骤。
右上角的楼板为降板,小迅自动更新边界条件
- 第一步:导出模型,完成计算并匹配楼板的ID
匹配计算模型ID
- 第二步:点击"楼板边界"导出边界条件数据库
导出边界条件(组装次序即为计算模型的组装次序)
- 第三步:在计算软件中导入边界条件的数据库
在计算软件中导入边界条件数据库
四、计算相关¶
4.1、抗震等级¶
问:为什么在计算模型的前处理总参中设置的抗震等级未生效❓
答:由于楼层表信息,计算软件会按照楼层表中的抗震等级生效。
数据优先级:构件特殊指定 > 楼层表 > 前处理总参
4.2、楼层表¶
问:为什么我在小迅里修改了楼层表的混凝土等级,导入计算软件后未生效❓
答:尝试用“生成YJK模型”的方式,在新的文件夹中生成计算模型。
若导出模型的数据正确,请检查原先的导模是否采用了“更新YJK模型”的方式。
| 导模方式 | 生成YJK模型 | 更新YJK模型 |
|---|---|---|
| 楼层表信息 | ✔️更新 | ❌不更新 |
| 计算前处理总参 | ✔️更新 | ❌不更新 |
| 多塔信息 | ✔️更新 | ❌不更新 |
4.3、计算总参的修改¶
问:在计算模型中修改了前处理总参,并且没有匹配回小迅,如何保证总参是正确的?
答:如果在试算阶段,为了效率不想进行匹配操作,可通过以下方式保证总参的正确。
| 序号 | 操作方法 | 备注 |
|---|---|---|
| 1 | 将总参手动导出、再导入 | 手动导入简单明了,但注意不要导错文件😅 |
| 2 | 采用“更新YJK模型”,不会更新YJK总参 | 若修改了小迅模型的楼层表,不可采用更新方式 |
4.4、层间板¶
问:为什么小迅中的楼板在计算软件中会变为层间板❓
答:小迅的空间楼板按层间板导入计算软件,可保证楼板标高信息的正确。
上述现象出现于空间模型,例如:坡屋顶,复杂楼梯。
按层间板导入计算模型可保证板的空间位置正确
4.5、层间板与全房间洞¶
问:为什么计算软件中层间板有全房间洞的开洞符号❓
答:当楼板按层间板导入计算软件时,将对其围蔽区域进行全房间洞处理,以防出现多余楼板。
4.6、坡屋顶计算异常¶
问:为什么用轮廓线建立的坡屋顶,计算结果异常❓
答:回字形楼板在计算软件中会出现异常。
解决方法:使用虚梁功能,人工将其划分为矩形楼板。
使用轮廓线建立的坡屋顶,出现回字形楼板
在计算结果中,显示恒载作用下的位移异常
解决办法:采用虚梁人工划分楼板,形成规则的矩形楼板
4.7、计算模型中楼板显示异常¶
问:为什么在小迅对梁板设置了偏移值,导入计算模型后楼板标高会显示异常❓
答:在输入较小高差值时(例如:50),会出现示意图(A)的现象。当前有3种解决方案:
- 导模时忽略该处梁板构件的Z偏移值
- 指定该楼板为层间板,如示意图(B)
- 若用户不嫌麻烦,可手动设置"楼板位置",如示意图(C)
示意图(A):高差为50,楼板位置为"自动"时的楼板效果
示意图(B):指定楼板为层间板
示意图(C):手动设置楼板位置为"底部"时的楼板效果
4.8、一键导出数据库崩溃¶
问:一键导出数据库时计算软件崩溃,怎么办❓
答:可采用手动导出的方式,并且在导出dsnModel时不勾选任何选项。
导出dsnModel时,无需勾选任何选项。
4.9、导出计算结果失败¶
问:导出计算结果数据库出错时怎么办❓
答:如遇到导出计算结果数据库错误时,可尝试:
- 手动导出数据库
- 在计算软件中使用"工程打包"后,再次进行计算
- 换计算软件版本进行计算
- 换台电脑进行计算
- 联系计算软件的技术支持
导出计算结果数据库出现错误的提示
五、匹配结果¶
5.1、匹配异常¶
问:匹配YJK时提示异常是怎么回事❓
答:请确保YJK的三个数据库均正常导出。
匹配计算模型时的异常提示
计算结果模型的数据库
建模模块的数据库
📢📢📢特别说明:导出dsnModel时,不需要勾选任何选项
导出dsnModel界面
5.2、刷新截面¶
问:如果在计算软件中修改了截面,匹配回小迅时是否会刷新截面❓
答:支持按计算模型的构件截面刷新小迅模型。
匹配构件信息界面
📢特别说明:
在计算软件中修改构件空间信息,将导致无法匹配
由于计算软件非三维建模平台,若用户修改构件空间信息(包括:新增、移动),将导致无法匹配的情况。建议用户:直接在小迅中进行修改操作。
5.3、小洞口无法匹配¶
问:为什么剪力墙中有小洞口时会出现匹配失败❓
答:当洞口尺寸过小时,计算软件在生成有限元模型时,会忽略洞口的存在。
解决办法:用户可将小迅模型中的小洞口设置为:非有限元墙洞。
在计算模型中可以看到小洞口
在计算时会自动忽略小洞口,并且查看构件信息时也是为一整片墙
解决办法:取消小洞口的"有限元洞口"属性
不同洞口尺寸在计算软件中的简单测试:
以50模数为例,当洞口尺寸≤500时将不在有限元模型中体现
5.4、导荷方式¶
问:在计算软件中设置了楼板的导荷方式,是否会被记录❓
答:在"匹配构件信息"界面中勾选板的"特殊指定"后,将记录用户在计算软件中设置的导荷方式。
记录板的导荷方式需要勾选板的特殊指定。
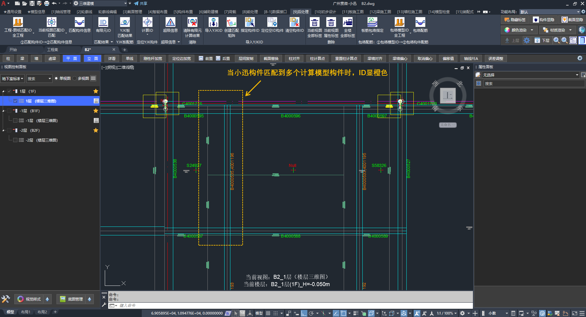
5.5、构件ID颜色¶
问:为什么构件ID是橙色❓
小迅构件匹配到多个计算模型构件ID时,ID显橙色以作提示。
小迅构件匹配到多个计算模型构件ID时,ID显橙色
5.6、计算总参的存储¶
问:将计算结果匹配回小迅后,计算软件的前处理总参设置存储在哪里❓
答:不同的匹配方式略有不同。👉点击查看文档
- 匹配工程、图纸 → 存储在图纸
- 匹配视图 → 存储在当前视图
更新日期:2025年12月19日



































