构件管理¶
介绍与构件相关的功能
一、前言¶
1.1、名词解释¶
📍 对齐方式¶
构件截面变化时的不动点、不动边。
对齐方式的重要作用:以应对截面的反复修改。
📍 柱定位点¶
柱的对齐方式,在柱截面变化时的不动点。
📍 柱计算点¶
导入计算软件后柱构件的节点。
默认状态下同定位点,用户可进行干预。
📍 梁墙定位线¶
梁墙的对齐方式,在梁墙截面变化时的不动边。
📍 梁墙计算线¶
导入计算软件后构件的网格线。
默认状态下同定位边,用户可进行偏心设置。
1.2、操作界面¶
布置构件界面¶
布置构件的界面说明
柱的UI说明¶
柱的UI说明
墙的UI说明¶
墙的UI说明
梁的UI说明¶
梁的UI说明
板的UI说明¶
板的UI说明
折板的UI说明¶
折板的UI说明
二、布置构件¶
支持CAD的常规功能编辑构件:
删除:ERASE
移动:MOVE
旋转:ROTATE
复制:COPY
镜像:MIRROR
选择类似对象:SELECTSIMILAR
2.1、柱¶
垂直柱¶
用户在布置前应了解:👉柱的UI介绍
🟢布置¶
🖍️ 操作步骤:
- 点击:“垂直柱”按钮
- 设置:构件属性(工具条)
- 设置:对齐方式(按TAB键或右键列表)
- 点击:插入点
- 修改:双击字符,在位编辑尺寸
布置垂直柱的操作步骤
2.2、墙¶
直墙¶
用户在布置前应了解:👉墙的UI介绍
🟢布置¶
🖍️ 操作步骤:
- 点击:"直墙"按钮
- 设置:构件属性(工具条)
- 设置:对齐方式(按TAB键)
- 点击:起点、终点
- 修改:双击字符,在位编辑尺寸
布置直墙的操作步骤
2.3、梁¶
直梁¶
用户在布置前应了解:👉梁的UI介绍
🟢布置¶
🖍️ 操作步骤:
- 点击:"直梁"按钮
- 设置:构件属性(工具条)
- 设置:对齐方式(按TAB键)
- 点击:起点、终点
- 修改:双击字符,在位编辑尺寸
布置直梁
2.4、板¶
用户在操作前:👉板的UI介绍
当构件围成闭合区域时,会自动生成板。
自动生成板 / 全房间洞
📢特别说明:
板的边界线为由"柱计算点"和"梁墙计算线"决定,小迅自动判断边界条件。
飘板¶
🟢布置¶
用虚梁来构建飘板。
用虚梁建立飘板
📢特别说明:
导模时,自动按"弹性板"生成计算模型。
折板¶
提供矩形折板、圆形折板、任意折板的布置功能。
🟢布置¶
用户在布置前应了解:👉折板的UI介绍
🖍️ 操作步骤:
- 点击:"折板"按钮
- 设置:构件属性(工具条)
- 点击:折板内侧的边界范围
布置折板的操作步骤
🟡编辑¶
在位编辑折板的操作
在位编辑折板的操作
支持修改折板的单边厚度
🔴删除¶
批量删除折板的操作步骤
删除单个折板的操作步骤
🟣其他设置¶
视觉样式:
板填充:
- 设置沉板区域范围内的填充样式👉点击查看文档
2.5、板洞¶
全房间洞¶
🟡编辑¶
选择板直接删除,即变为全房间洞。
删除板后即为全房间洞
🔴删除¶
批量删除板洞,实现全房间洞→板。
局部板洞¶
提供多种局部板洞的布置功能。
- 楼板开洞:洞口按构件的方式布置,有截面尺寸和对齐方式。
- 任意板洞:板洞形状由用户实时绘制。
🟢布置¶
楼板的局部开洞
🟡编辑¶
编辑楼板开洞的尺寸和位置。
🔴删除¶
批量删除局部板洞的方法
选中板洞直接删除
2.6、墙洞¶
2.7、大样¶
三、有限元相关¶
小迅自动生成的有限元模型完全由用户控制。
3.1、轴线FEA属性¶
当构件的有限元信息与轴线关联时,可使用轴线的FEA属性。
满足以下条件时,将自动调整构件的计算信息:
| 条件 | 状态 |
|---|---|
| 轴线在构件的宽度范围内 | ✔️ |
| 梁墙构件与轴线平行 | ✔️ |
🖍️ 操作步骤:
- 选择:轴线
- 设置:在属性面板中勾选“轴线FEA”。(👉定义修改快捷键)
- 刷新3D构件
设置轴线FEA属性(勾选后轴线呈紫色)
3.2、柱计算点¶
默认状态下,柱计算点同定位点。用户可通过“柱计算点”功能进行设置。
柱计算点:CMDMODIFYCALOFFESTOFCOLUMN
重置计算点:CMDCLEARCALOFFESTOFCOLUMN
🖍️ 操作步骤:
- 进入:全视图或多视图模式
- 点击:“柱计算点”按钮
- 框选:需要修改的柱,右键确定。
- 点击:设置的计算点(👉对象捕捉的技巧),右键确定。
切换到全视图后,批量设置柱的计算点
在设置计算点时,可输入:END,以快速捕捉端点。
确定计算点时,建议用户关闭底图,避免因捕捉底图的点而引发误差问题。
若捕捉点有误差时,建议选择“是”进行调整。
3.3、梁墙计算线¶
默认状态下,梁墙计算线同定位线。用户可通过“梁墙偏心”功能进行设置。
梁墙偏心:CMDDEFINEWALLANDBEAMALIGN
取消梁墙偏心:CMDCLEARWALLBEAMOFFSET
🖍️ 操作步骤:
- 进入:全视图或多视图模式
- 点击:“梁墙偏心”按钮
- 框选:需要修改的梁墙,右键确定。
- 点击:确定计算线的所在位置。
设置梁墙偏心的操作步骤
确定计算线时,建议用户关闭底图,避免因捕捉底图的点而引发误差问题。
若捕捉点有误差时,建议选择“是”进行调整。
3.4、设置FEA定位线¶
提供一种更自由的设置梁墙计算线的方式。
构件的计算线与构件的平面位置相互独立,不再关联。
设置FEA定位线:CmdSetFEALocation
设置FEA定位线的操作步骤
四、批量修改¶
4.1、柱对齐方式¶
- 单个构件的修改:拖动夹点
- 多个构件的修改:修改柱对齐方式、切换柱对齐方式
修改柱对齐方式:CMDDEFINECOLUMNALIGN
切换柱对齐方式:Cmd_ChangeColumnAlign
支持在多视图"或"全视图"中的批量修改。
修改柱对齐方式的三种方式
4.2、梁墙对齐方式¶
修改梁墙对齐方式¶
🖍️ 操作步骤:
- 支持:全视图或多视图模式下的修改
- 点击:“修改梁墙的对齐方式”按钮
- 框选:需要修改的梁墙,右键确定。
- 点击:确定对齐方式切换到哪一侧,若不点击直接右键确定则切换为“居中”。
修改梁墙的对齐方式
仅修改对齐方式保留计算线¶
🎯使用场景:
部分用户习惯采用200宽梁墙的中线作为计算线,所以建模时会采用居中的方式布置。
故用户修改截面前,调整一次构件的对齐方式,同时保留200宽中线作为计算线的信息。
🖍️ 操作步骤:
- 支持:全视图或多视图模式下的修改
- 点击:“仅修改对齐方式保留计算线”按钮
- 框选:需要修改的梁墙,右键确定。
- 点击:确定对齐方式切换到哪一侧,若不点击直接右键确定则切换为“居中”。
保留计算线的位置,仅修改对齐方式。
4.3、修改截面尺寸¶
- 单个构件的修改:在位编辑
- 多个构件的修改:截面替换、格式刷
截面替换:CMDREPLACESHAPE
操作技巧:
1. 👉格式刷快速修改截面
2. 👉过滤器 + 截面替换=定向的截面替换
4.4、设置偏移值¶
可批量设置构件的高度方向偏移值,偏移值表达式支持共享参数。
设置偏移值:CmdBatchModifyOffset
设置偏移值按钮所在位置
批量设置构件的偏移值的操作步骤
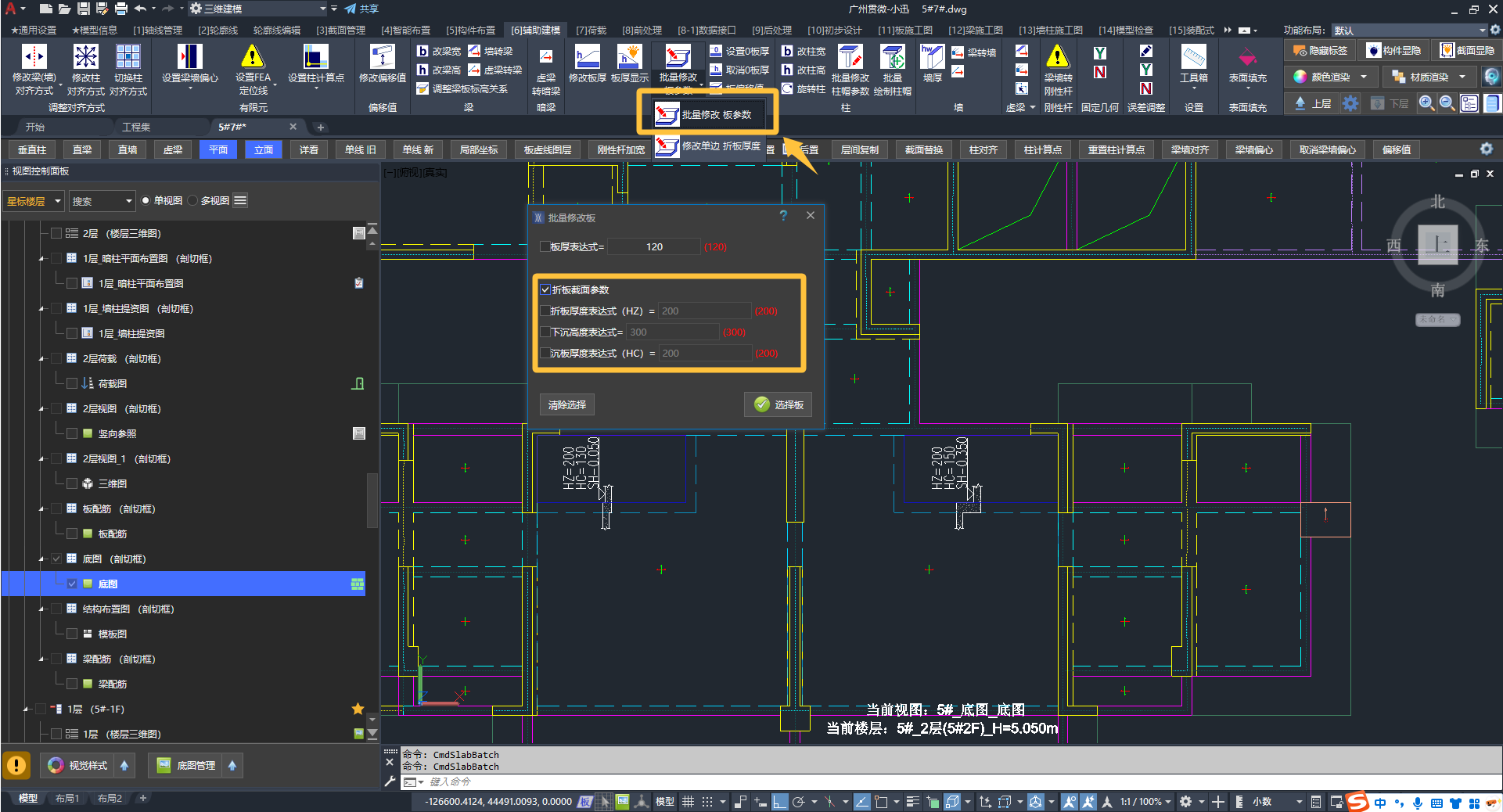
4.5、修改板厚¶
- 单个构件的修改:在位编辑
- 多个构件的修改:修改板厚、截面替换、格式刷
修改板厚:CmdModifySlabThickness
截面替换:CMDREPLACESHAPE
修改板厚的不同方式
五、常用功能¶
5.1、层间复制¶
参数介绍¶
层间复制的界面说明
当前图纸¶
将"当前楼层"的构件复制到其他标准层。
🖍️ 操作步骤:
- 点击:“层间复制”按钮
- 选择:目标标准层和构件类型(不选板时,目标楼层的板会自动重新生成。)
- 设置:按需设置相关参数
- 确定:选择构件的方式
层间复制的操作步骤
跨图纸复制构件¶
在协同建模(或单人多图纸建模)中,支持从别图复制构件到当前图纸中。
🖍️ 操作步骤:
- 准备:创建视图,以此看到需要复制的引用构件
- 点击:“层间复制”按钮
- 选择:选择"包含引用"
- 选择:选择坐标信息。
- 选择:框选需要复制的引用构件
在地下室首层创建剖切框,以此看到塔楼二层的竖向构件
界面勾选"包含引用",以此完成跨图纸复制构件
5.2、截面替换¶
操作技巧:
- 截面替换可结合"过滤器"(快速选择)使用:👉定向截面替换
- 重复的截面可通过“全截面替换”清除:
5.3、拾取布置¶
5.4、批量删除¶
5.5、裁剪体¶
用户控制构件端部裁剪效果的功能
🖍️ 操作步骤:
- 点击:"裁剪体"按钮
- 选择:需要裁剪的构件
- 确定:裁剪边
裁剪体(直线)
更新日期:2025年12月15日








































